|
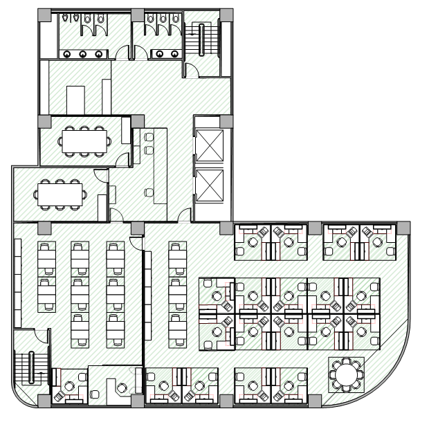
 | Floor Plan Shapes are used for the creation of floor plan drawings, architecture, building engineering diagrams etc. It is important to know that the shapes in this factory are defined in their actual size - it is important how large a table, chair or desk is. The drawing must use drawing scale for the proper display of these shapes. Nevron Diagram for .NET implements a myriad of predefined shapes, which can come handy in many types of diagrams. |
|
|
Floor Plan Shapes are used for the creation of floor plan drawings, architecture, building engineering diagrams etc. It is important to know that the shapes in this factory are defined in their actual size - it is important how large a table, chair or desk is. The drawing must use drawing scale for the proper display of these shapes. Nevron Diagram for .NET implements a myriad of predefined shapes, which can come handy in many types of diagrams. |  |
|
|
 | Floor Plan Shapes are used for the creation of floor plan drawings, architecture, building engineering diagrams etc. It is important to know that the shapes in this factory are defined in their actual size - it is important how large a table, chair or desk is. The drawing must use drawing scale for the proper display of these shapes. Nevron Diagram for .NET implements a myriad of predefined shapes, which can come handy in many types of diagrams. |
|
|
Floor Plan Shapes are used for the creation of floor plan drawings, architecture, building engineering diagrams etc. It is important to know that the shapes in this factory are defined in their actual size - it is important how large a table, chair or desk is. The drawing must use drawing scale for the proper display of these shapes. Nevron Diagram for .NET implements a myriad of predefined shapes, which can come handy in many types of diagrams. |  |
|
|
 | Floor Plan Shapes are used for the creation of floor plan drawings, architecture, building engineering diagrams etc. It is important to know that the shapes in this factory are defined in their actual size - it is important how large a table, chair or desk is. The drawing must use drawing scale for the proper display of these shapes. Nevron Diagram for .NET implements a myriad of predefined shapes, which can come handy in many types of diagrams. |
|
|
Floor Plan Shapes are used for the creation of floor plan drawings, architecture, building engineering diagrams etc. It is important to know that the shapes in this factory are defined in their actual size - it is important how large a table, chair or desk is. The drawing must use drawing scale for the proper display of these shapes. Nevron Diagram for .NET implements a myriad of predefined shapes, which can come handy in many types of diagrams. |  |
|
|
 | Floor Plan Shapes are used for the creation of floor plan drawings, architecture, building engineering diagrams etc. It is important to know that the shapes in this factory are defined in their actual size - it is important how large a table, chair or desk is. The drawing must use drawing scale for the proper display of these shapes. Nevron Diagram for .NET implements a myriad of predefined shapes, which can come handy in many types of diagrams. |
|
|